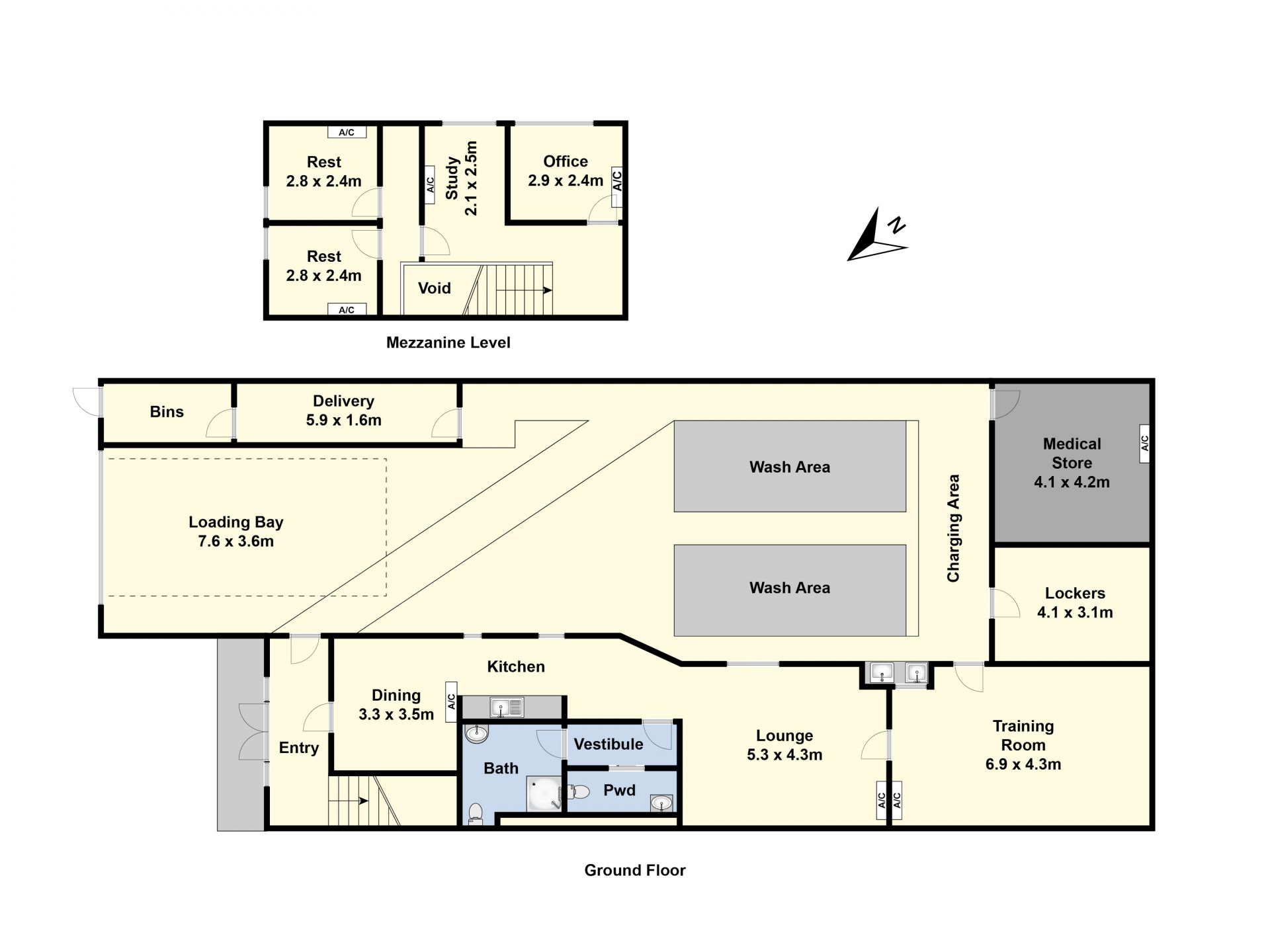
11/8 Lewalan Street, Grovedale
Industrial
Blue Chip Tenanted Investment
* Long term lease to Ambulance Victoria
* Approx. 350m2 'as new' high span warehouse
* Reception, kitchen, amenities, mezzanine office, polished concrete floors
* Over $350,000 fit out by tenant
* Set and forget
* Zoned industrial 1
Note - internal photographs taken prior to fit out
* Approx. 350m2 'as new' high span warehouse
* Reception, kitchen, amenities, mezzanine office, polished concrete floors
* Over $350,000 fit out by tenant
* Set and forget
* Zoned industrial 1
Note - internal photographs taken prior to fit out
