178 Marshalltown Road, GROVEDALE
Industrial
***UNDER OFFER***
 * Ripe for some transformation with potential plus
* Gateway to Residential Growth Corridor and the Surf Coast
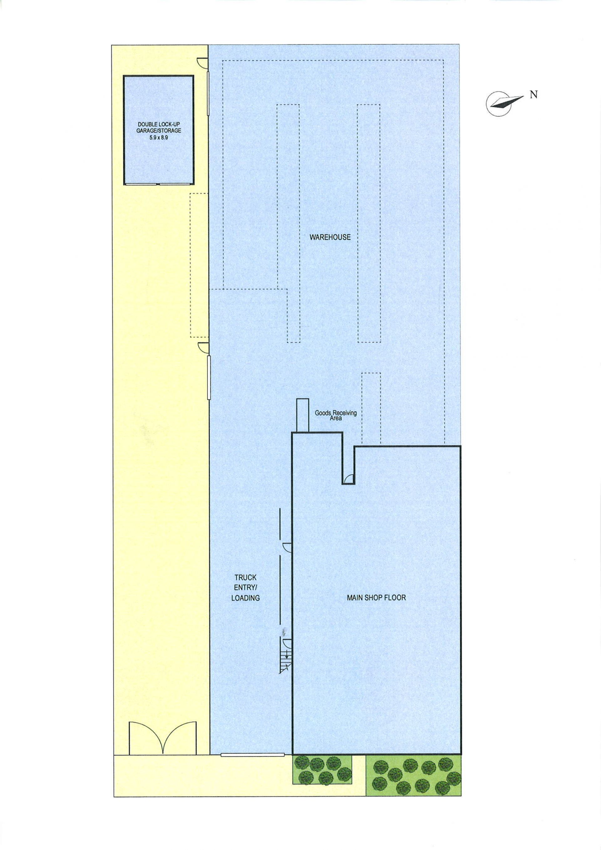
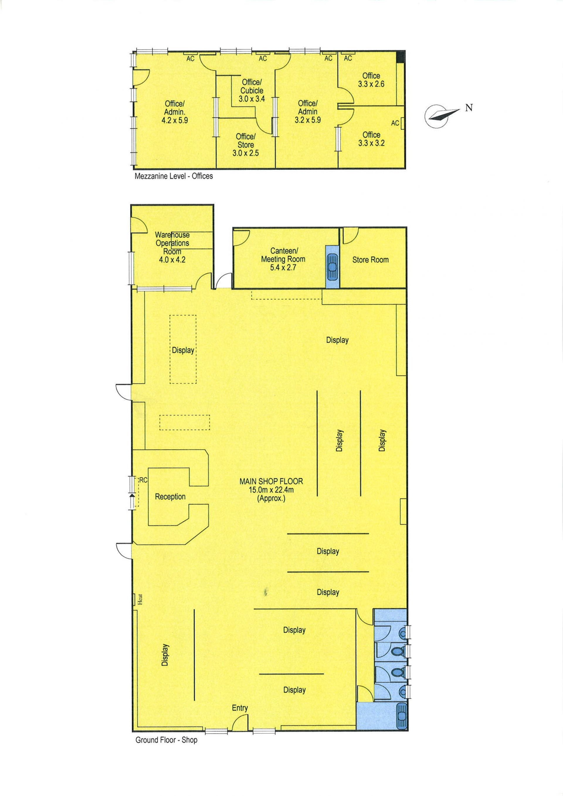
* Building area approx 1,280m2 with mezzanine offices
* Short term lease in place
* Zoned Industrial 1
 
* Gateway to Residential Growth Corridor and the Surf Coast
* Building area approx 1,280m2 with mezzanine offices
* Short term lease in place
* Zoned Industrial 1
