1 & 2/25 Edols Street, North Geelong
Industrial
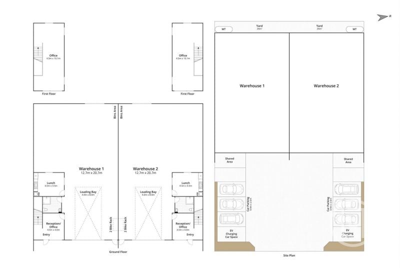
2 High End Warehouses in Booming North Geelong (UNIT 2 SOLD)
* 272m² of premium space, including 114m² of customisable double-storey office
* Generous 514m² land allotments
* Architecturally designed tailored fit-out available
* Strategic location near Geelong Port and Spirit of Tasmania
* Modern infrastructure including 40 AMP 3-phase power, EV charging & secure gated access
* Positioned in a booming industrial hub, primed for long-term growth and connectivity
* Zoning - Industrial 1
CONJUNCTIONAL AGENT
Coxwell Kerr
- Nick Kerr 0413 816 016
* Generous 514m² land allotments
* Architecturally designed tailored fit-out available
* Strategic location near Geelong Port and Spirit of Tasmania
* Modern infrastructure including 40 AMP 3-phase power, EV charging & secure gated access
* Positioned in a booming industrial hub, primed for long-term growth and connectivity
* Zoning - Industrial 1
CONJUNCTIONAL AGENT
Coxwell Kerr
- Nick Kerr 0413 816 016
