56 Rose Avenue, Norlane
House
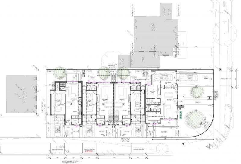
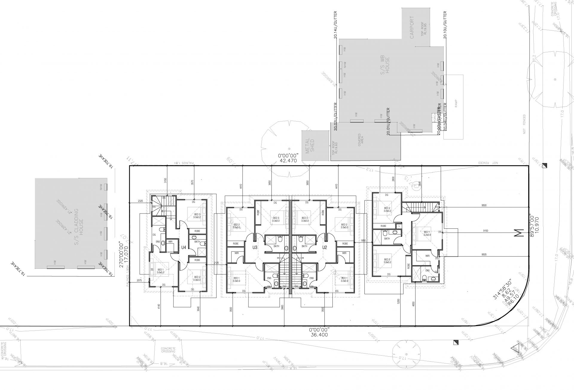
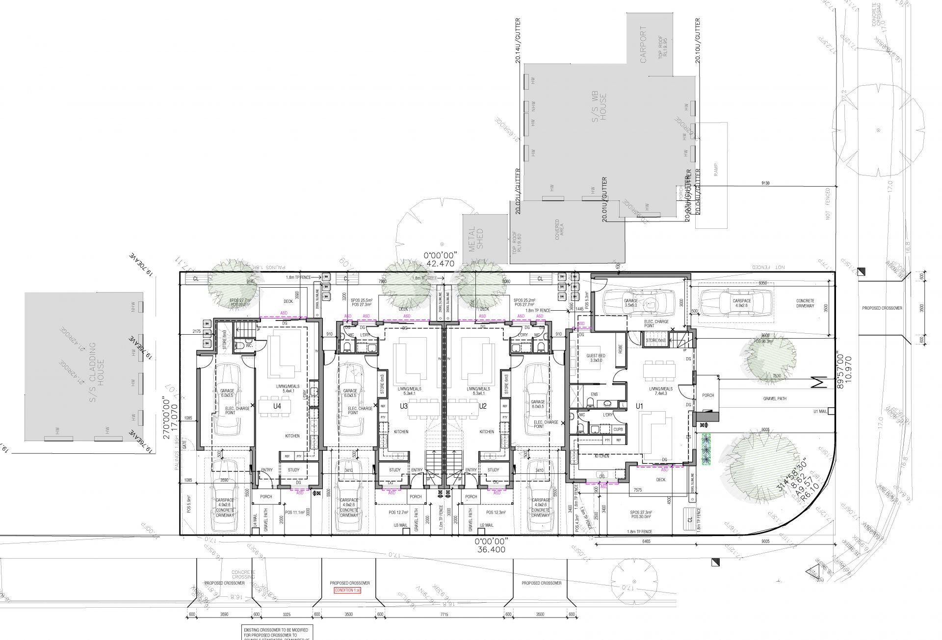
Big Block, Big Opportunities
Plans and permits for 4 townhouses make this property an outstanding opportunity for developers, investors, or buyers looking to take advantage of a good size block with excellent potential.
The existing home features an open plan kitchen, living, and meals area, two bedrooms, a bathroom with shower over bath, separate toilet, and ramp access for easy entry. A spacious backyard adds further appeal, whether for immediate use or future development potential.
Conveniently positioned close to shops, parks, and public transport, this property combines lifestyle appeal with strong development prospects.
Don't miss your chance to secure a site with plans and permits ready to go.
The existing home features an open plan kitchen, living, and meals area, two bedrooms, a bathroom with shower over bath, separate toilet, and ramp access for easy entry. A spacious backyard adds further appeal, whether for immediate use or future development potential.
Conveniently positioned close to shops, parks, and public transport, this property combines lifestyle appeal with strong development prospects.
Don't miss your chance to secure a site with plans and permits ready to go.
