15 Allambie Street, Leopold
House
Great Value Here
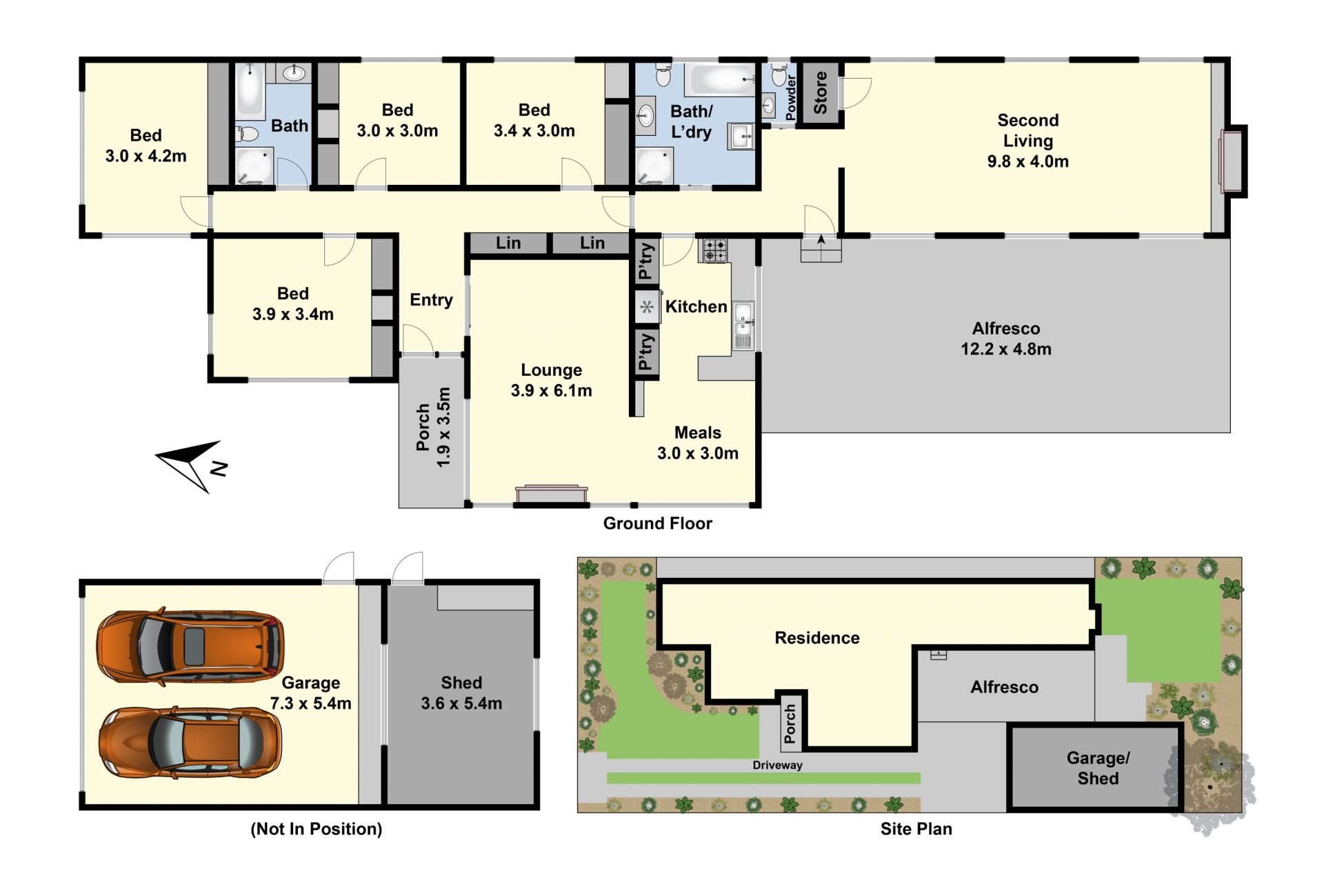
Looking for a generous family home close to shops, reserves and handy to the Gateway Plaza? You have now found it. Consisting of four good sized bedrooms all with BIR's, offering great accommodation. A well-equipped updated kitchen with adjacent meals and a sizable lounge room. Two bathrooms and a real bonus is the second living offering plenty of room for the whole family. Outside there is beautiful established gardens, alfresco area and large garage with workshop. What a winner, this one really does tick all the boxes.
