40 Aberdeen Street, GEELONG WEST
House
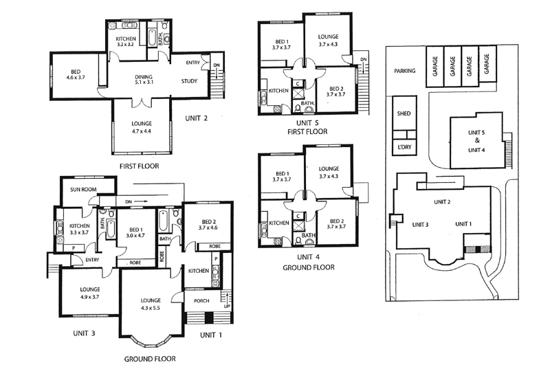
Many Happy Returns! - 5 Tenanted Units
You are presented with a wonderful opportunity here to add to your investment portfolio with 5 units providing a healthy return. There are 3 x 2 bedrooms and 2 x 1 bedroom, all separately metered and currently returning in excess of $52,000 pa. Many original features have been kept (with some upgrading) and the property has been immaculately maintained ensuring minimal cost is required on upkeep in its current state. Rear access to excellent garaging provides privacy and security whilst its proximity to the CBD, waterfront, school and tertiary institutions will enable the astute purchaser to realise its potential.
