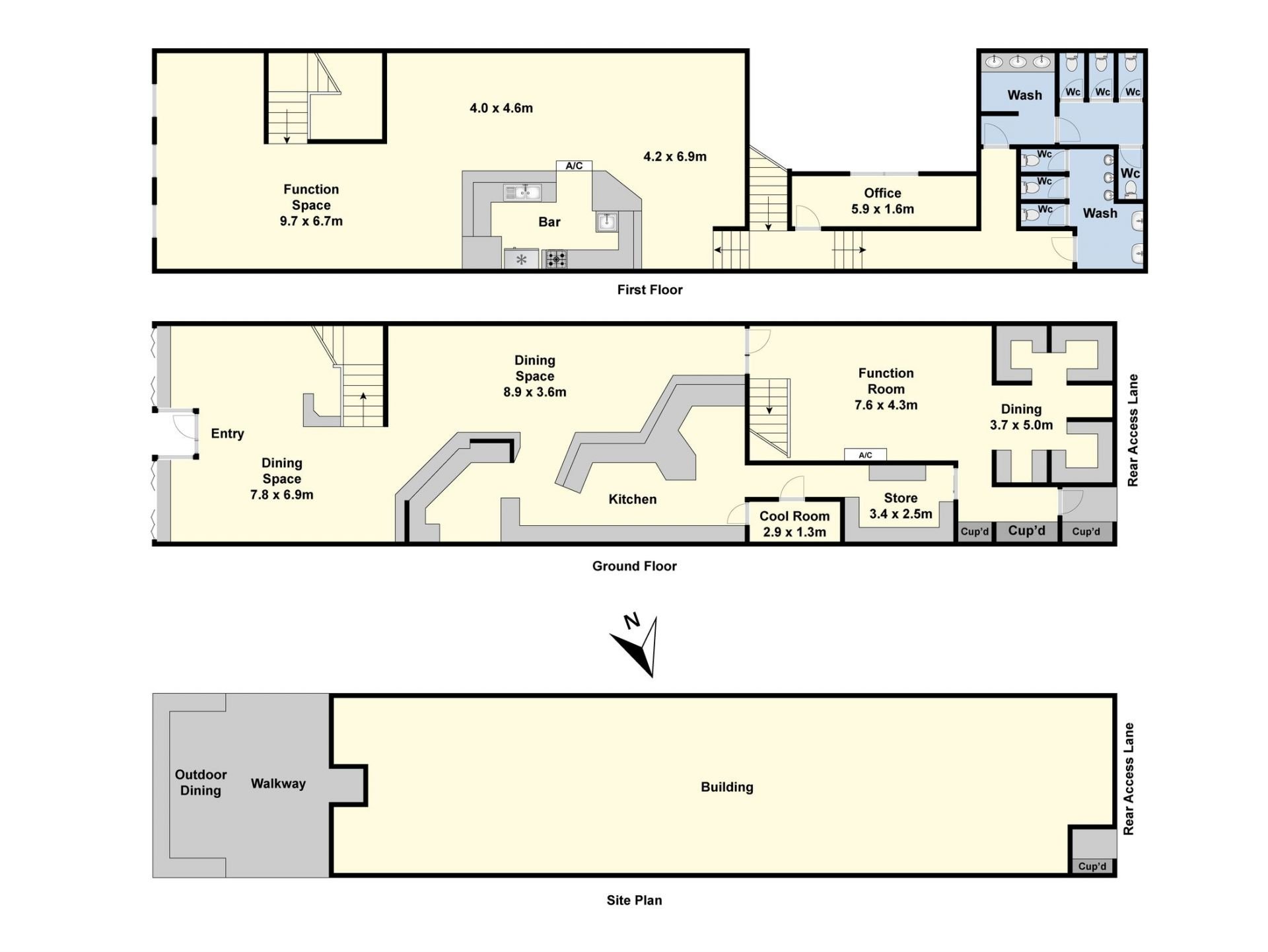
48 Moorabool Street, Geelong
Retail
Hospitality Venue Ready for a Fresh Start
* Upstairs & downstairs dining/function rooms
* Kitchen and bars (some equipment)
* Heating and cooling throughout
* Rear lane access
* Capacity for outdoor (street side) alfresco
* On premises cafe restaurant licence, generous trading conditions
* Long term lease available to proven hospitality groups and professionals
* Total building area 390m2 approx.
* Zoning - Activity Centre zone
* Kitchen and bars (some equipment)
* Heating and cooling throughout
* Rear lane access
* Capacity for outdoor (street side) alfresco
* On premises cafe restaurant licence, generous trading conditions
* Long term lease available to proven hospitality groups and professionals
* Total building area 390m2 approx.
* Zoning - Activity Centre zone
