43 Ryrie Street, Geelong
Offices
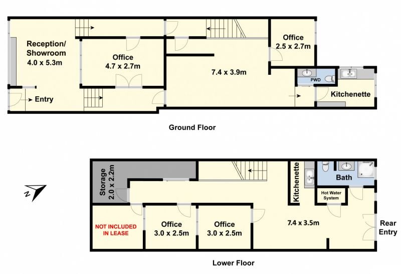
Two Storey Flexible Site for Offices/Retail/Consulting
* 2 x kitchens, 2 x toilets
* Rare offering of 5-6 off street CBD carparks
* Floor area approx 175m2
* Neighbouring Holiday Inn and a short stroll to train station
* Flexible Activity Centre 1 zone
* Rare offering of 5-6 off street CBD carparks
* Floor area approx 175m2
* Neighbouring Holiday Inn and a short stroll to train station
* Flexible Activity Centre 1 zone
