2/92 Donnybrook Road, Norlane
Unit
A Townhouse with Lots of Space
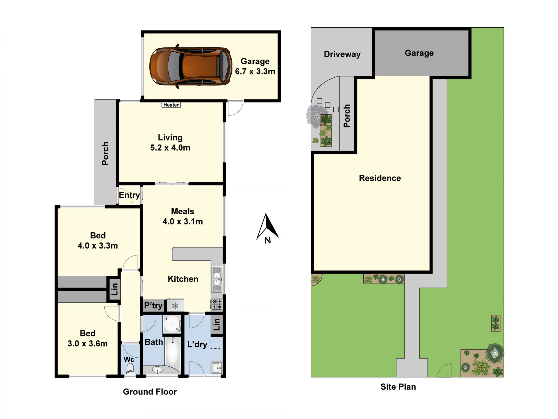
More than just a unit this home offers lots of room to move both inside and out. The spacious separate lounge with double doors is a real feature as an area that can be closed off from the generous kitchen and dining room for extra privacy and warmth. There are two bedrooms both with large BIR's, a central bathroom and a separate laundry. A remote-controlled garage enables entry to the large backyard that is ideal for pets or children to play as well as room for a vegie garden. A side gate too allows for easy access to public transport and shops, with the Ring Road handy as well. Perfect for downsizing, or as an easy-care investment this is one to put to the top of your list.
