3/12 Alkoomi Avenue, HAMLYN HEIGHTS
Unit
Private and Secure
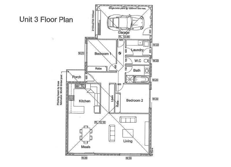
Just 3 years old and offering 12.7sq (approx 118m2) of living this townhouse offers the purchaser a stylish & sizeable home in a great location. A spacious open plan family room and meals area captures the most of a fabulous northerly aspect. Complete with air con & gas heating this 2 BR home provides for comfortable modern living in neutral tones. Nothing to do here but move in.
