7 Douglas Place, Geelong
House
Auction Sat. Bidders Must Register to Bid
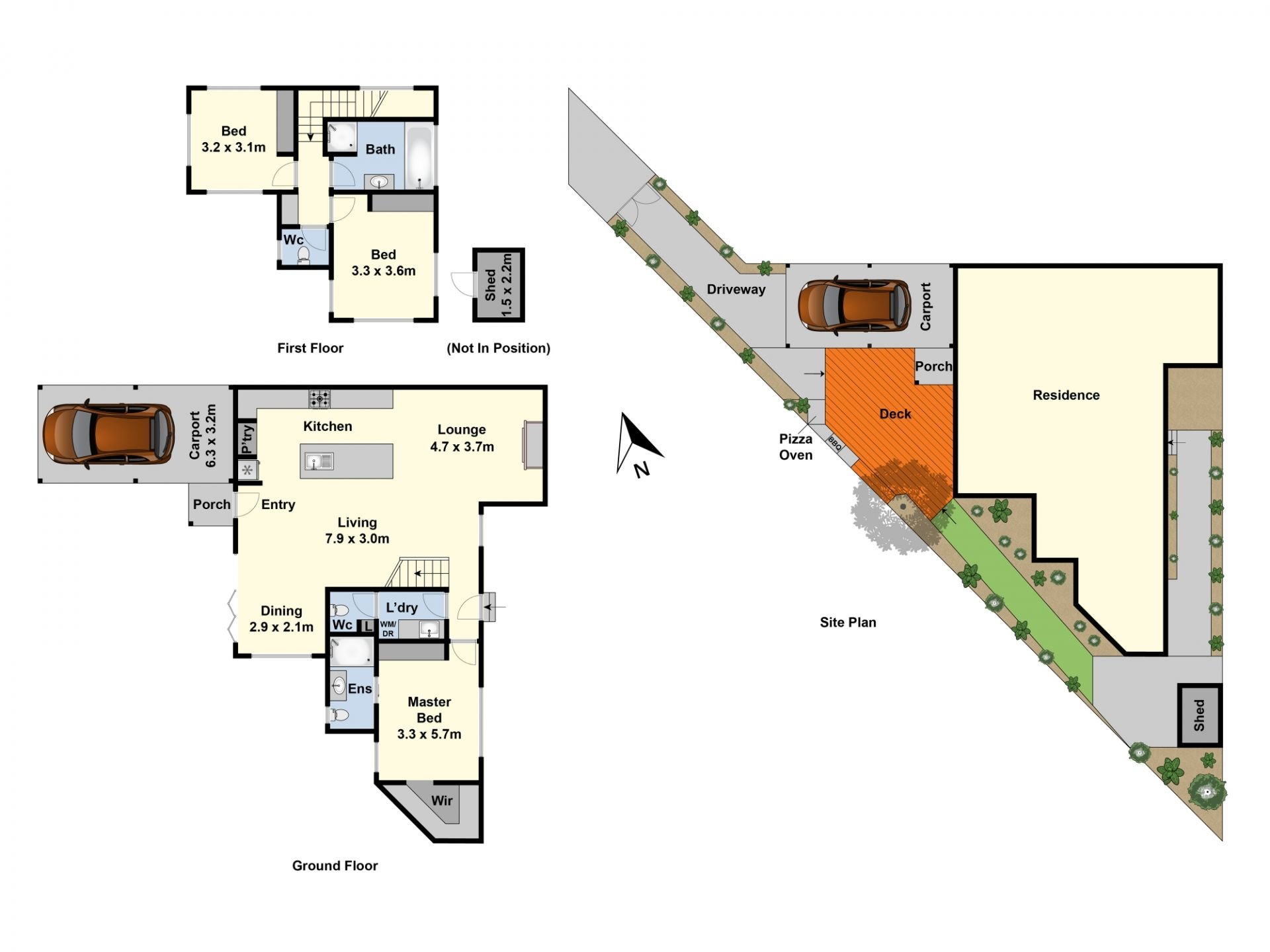
Here is your opportunity to purchase an exceptional designed home on the city fringe within walking distance to shops, restaurants and the waterfront, as well as Geelong/South Geelong Train Stations and Kardinia Park. This home comprises 3 bedrooms with large master downstairs inc. ensuite, WIR and BIR, fabulous modern kitchen, central spacious lounge and dining area, upstairs are two bedrooms, full bathroom with separate toilet. Other features include gas fire, split system, double glazing, separate laundry and powder room. Outside is a wonderful deck with a pizza oven ideal for entertaining family and friends when they drop by, a carport, and low maintenance gardens. This is inner city, funky living at its finest.
