305/120 Brougham Street, GEELONG
Apartment
Luxury Waterfront Living
This is a wonderful opportunity to experience living on Geelong's premier waterfront.
Enjoy magnificent views of the bay and tree lined reserve plus all the excitement of the waterfront's showcase events.
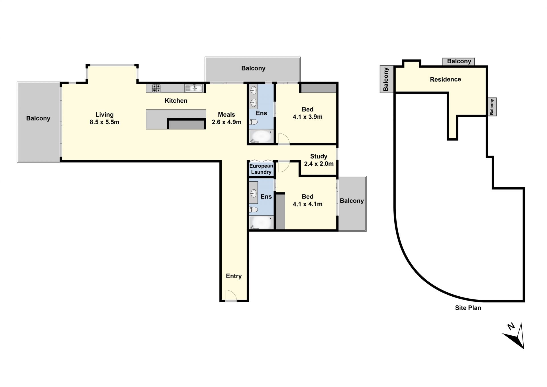
The spacious apartment offers luxurious living at the highest level and includes 2 queen size bedrooms with built in robes, 2 full ensuites, study area, dining area with 2 side balconies, fully equipped contemporary kitchen with gas cook top and stone bench tops, spacious open plan living with central heating and cooling, intercom with camera and the main balcony is ideal for summer entertaining.
A secure car space and storage completes the package.
This is a great opportunity to have the convenience of walking to work or train station plus enjoy shopping and dining at some of Geelong's best restaurants.
Enjoy magnificent views of the bay and tree lined reserve plus all the excitement of the waterfront's showcase events.
The spacious apartment offers luxurious living at the highest level and includes 2 queen size bedrooms with built in robes, 2 full ensuites, study area, dining area with 2 side balconies, fully equipped contemporary kitchen with gas cook top and stone bench tops, spacious open plan living with central heating and cooling, intercom with camera and the main balcony is ideal for summer entertaining.
A secure car space and storage completes the package.
This is a great opportunity to have the convenience of walking to work or train station plus enjoy shopping and dining at some of Geelong's best restaurants.
