16 Little Ryrie Street, Geelong
Offices
A Rare and Large CBD Holding
 For Sale by Expression of Interest - Closing Friday 28th May, 2021 at 4pm
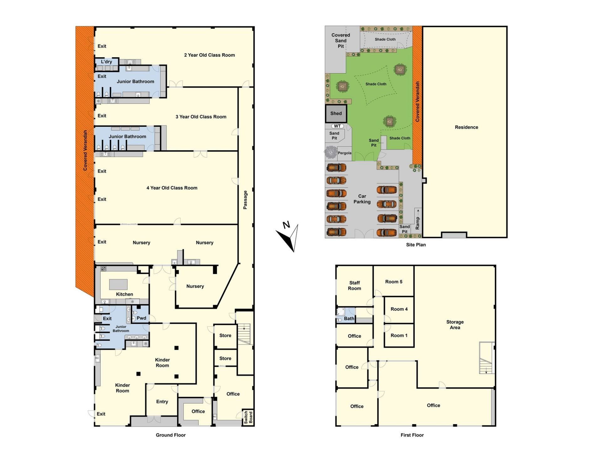
* Activity Centre Zone - Schedule 1
* Established Early Learning Centre tenant.
* Modern fit out including 11 car parks
* Land Approx 1,828m2
* Further development potential within the Central Business District.
 
* Activity Centre Zone - Schedule 1
* Established Early Learning Centre tenant.
* Modern fit out including 11 car parks
* Land Approx 1,828m2
* Further development potential within the Central Business District.
