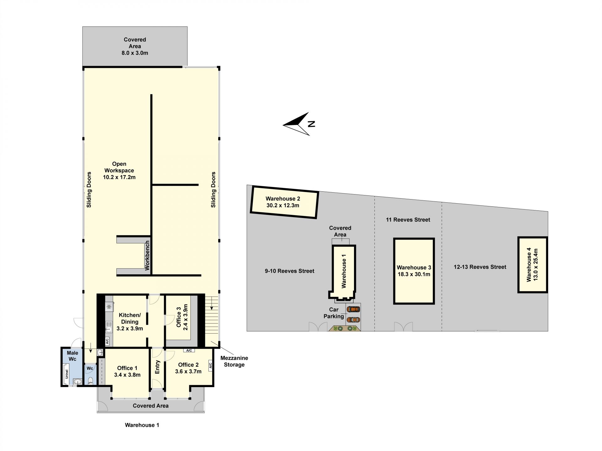
9-13 Reeves Court, Breakwater
Industrial
Buy One, Buy Two or Buy the Lot!
* 11 Reeves Court and 12-13 Reeves Court now sold
* Rare and Flexible Industrial Opportunities
* Combined land holding of over 2 acres
* Combined street frontage of approx. 130m
* Opportunity to occupy or develop
* Ideally positioned within an established industrial precinct
* Industrial 1 zone
* Rare and Flexible Industrial Opportunities
* Combined land holding of over 2 acres
* Combined street frontage of approx. 130m
* Opportunity to occupy or develop
* Ideally positioned within an established industrial precinct
* Industrial 1 zone
