128 Fyans Street, South Geelong
Showrooms/Bulky Goods
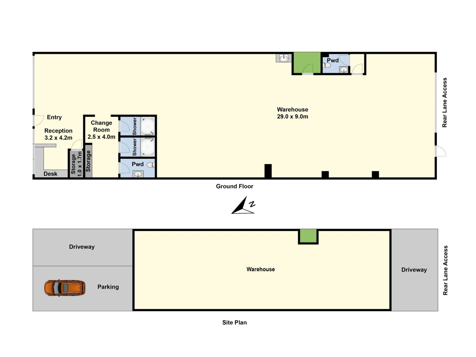
Well Located Workshop, Showroom, Studio
* Approx. 260m2 on popular Fyans Street
* Front and rear access
* Reception, amenities (including showers)
* Off street car parks
* Industrial 3 zone
* Front and rear access
* Reception, amenities (including showers)
* Off street car parks
* Industrial 3 zone
