18-20 Denbigh Street, Moolap
Industrial
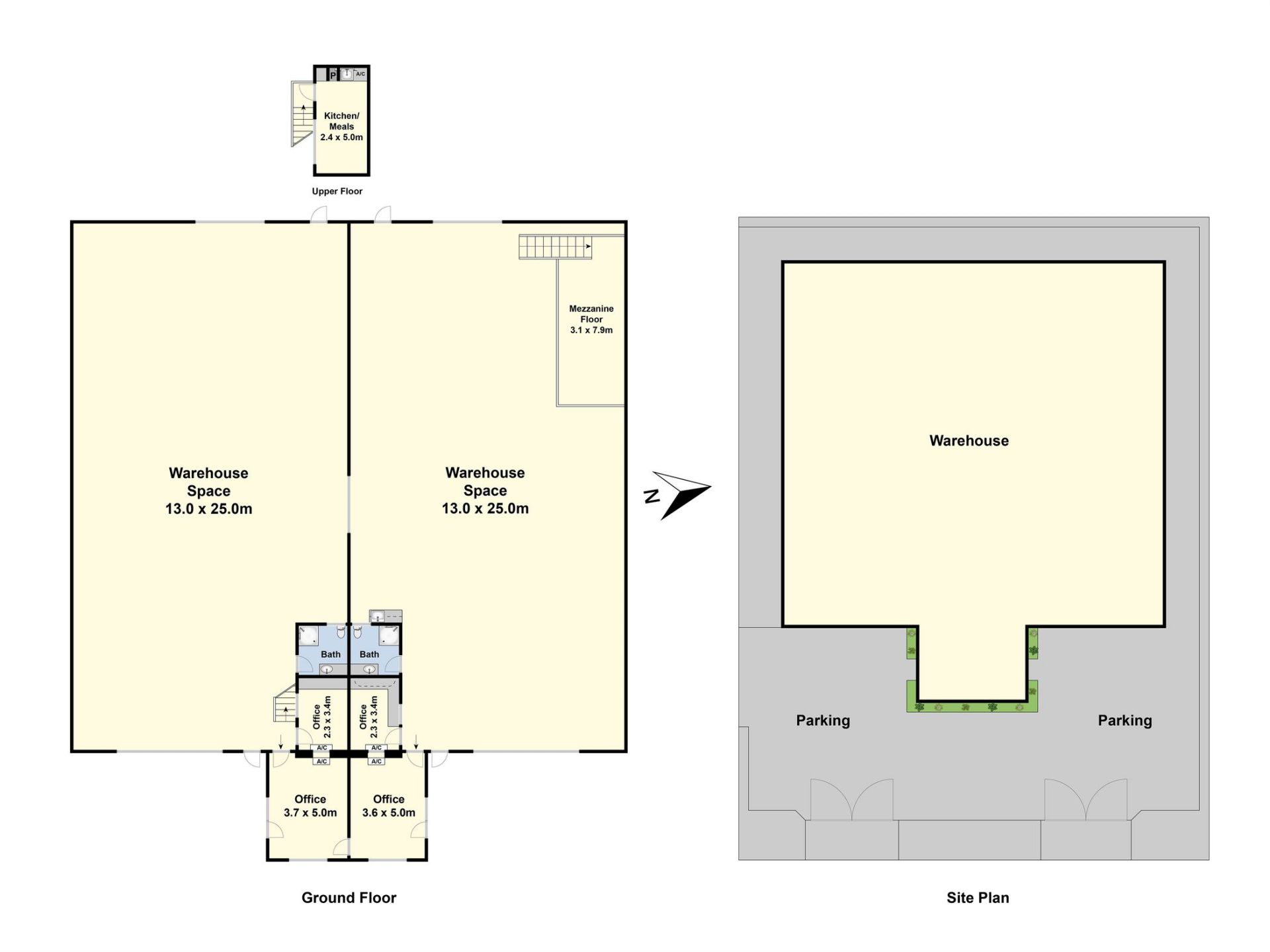
Well Fitted Out 2 for 1 Warehouses
* Over 685m2 floor area plus mezzanines on 1,290m2 yard space
* Reception/showroom, offices, kitchens, amenities (including shower)
* Dual front and rear roller doors
* High secure fence and gate with off street parking
* Lease transfer until December, 2025
* Industrial 1 zone
* Reception/showroom, offices, kitchens, amenities (including shower)
* Dual front and rear roller doors
* High secure fence and gate with off street parking
* Lease transfer until December, 2025
* Industrial 1 zone
