18A Tarkin Court, Bell Park
Industrial
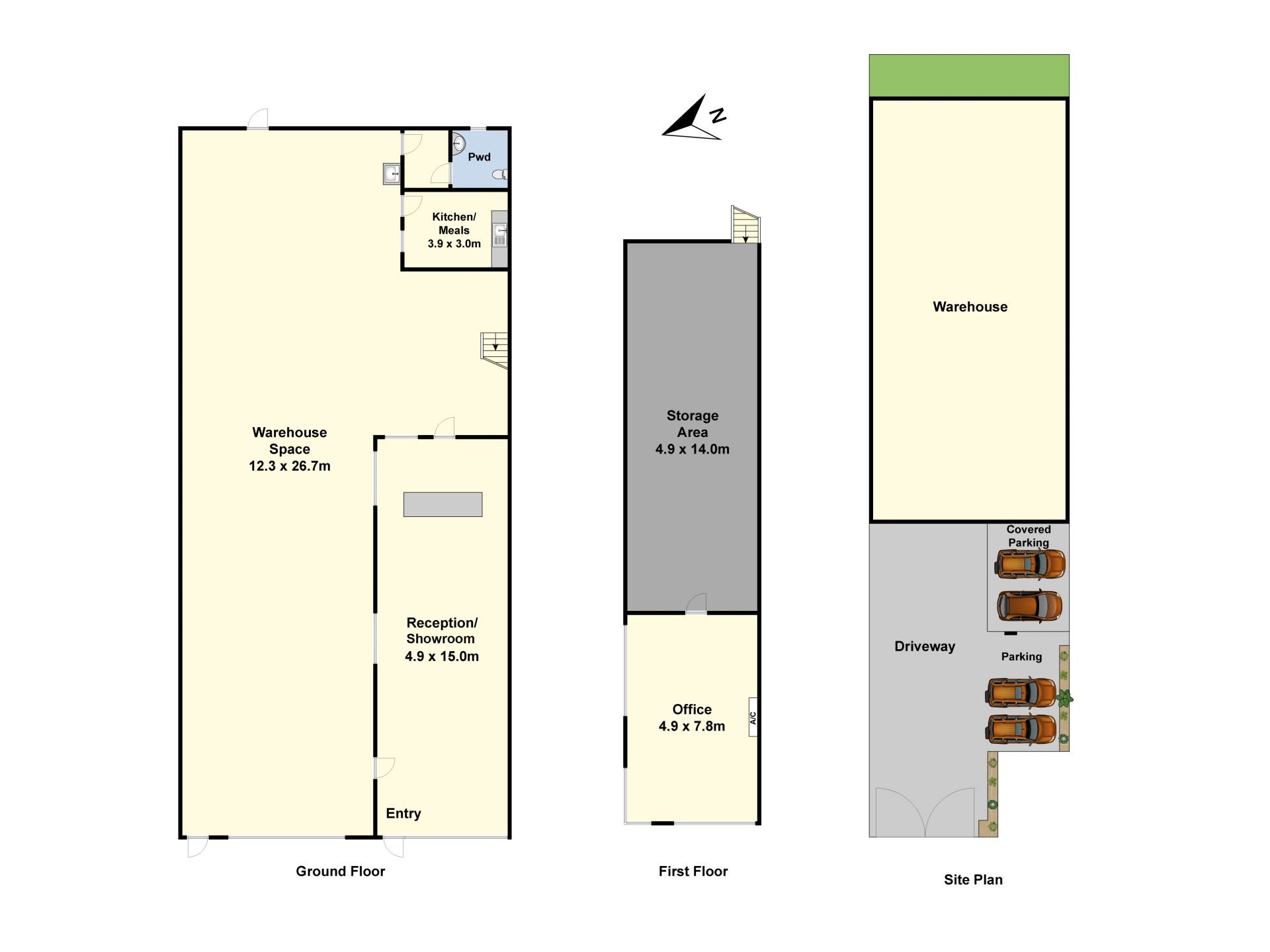
Quality Warehouse With Showroom
* Approx. 320m2 ground floor and 110m2 upstairs office and mezzanine
* Showroom, lunch room, amenities
* High span roof and roller door
* LED lights, 3 phase power, alarm, heating and cooling
* 5 carparks behind high secure fence and gate
* Available now
* Industrial 1 zone
* Showroom, lunch room, amenities
* High span roof and roller door
* LED lights, 3 phase power, alarm, heating and cooling
* 5 carparks behind high secure fence and gate
* Available now
* Industrial 1 zone